Featured Properties

To view the featured individual properties we have for sale, simply search using the fields below.

Courtesy of Exp Realty.
Data was last updated 2025-06-25 at 20:18:11 GMT
$779,000

8924 Mayday Way SW   Edmonton, Alberta

MLS®: E4463428
URL:    
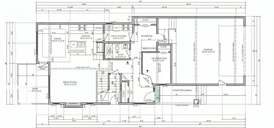
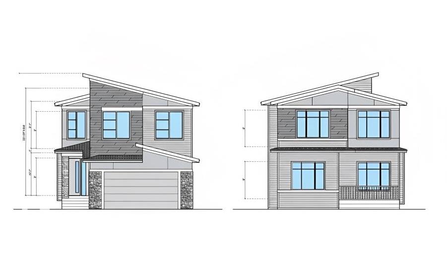
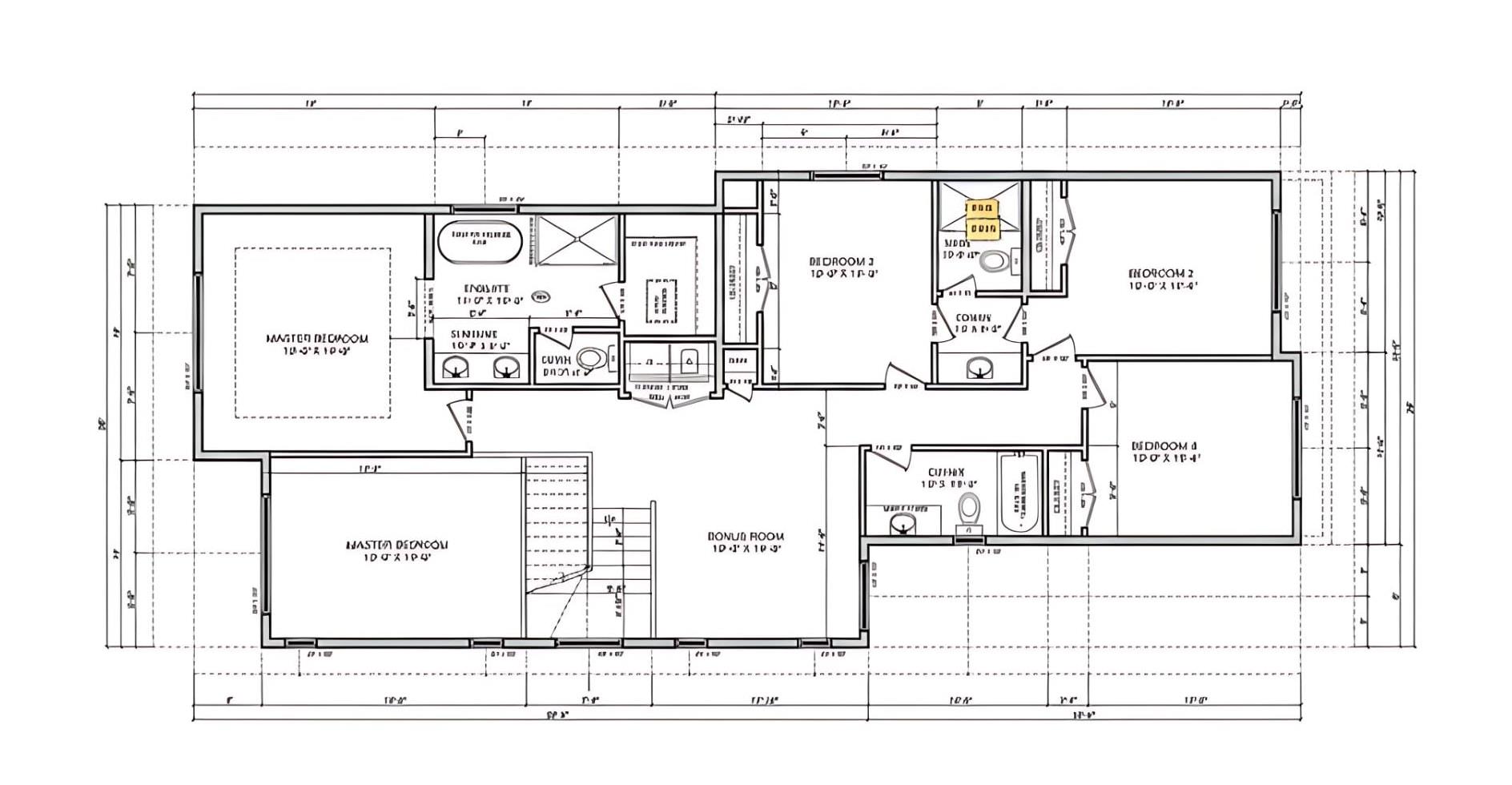
PREMIUM EAST FACING CORNER LOT ALERT! 26 POCKET REGULAR LOT Luxury under-construction home in The Orchards. Over 2300 sqft with brilliant natural light. Features include  open-to-below, dedicated SPICE KITCHEN, Main Floor Bedroom/Full Bath, and a side entrance. Upstairs offers 4 beds, bonus room, Jack & Jill bath, and a 5-piece Master Ensuite. Enjoy exclusive access to the Residents' Clubhouse, splash park, and trails. Inquire today for this rare opportunity!
PREMIUM EAST FACING CORNER LOT ALERT! 26 POCKET REGULAR LOT Luxury under-construction home in The Orchards. Over 2300 sqft with brilliant natural light. Features include open-to-below, dedicated SPICE KITCHEN, Main Floor Bedroom/Full Bath, and a side entrance. Upstairs offers 4 beds, bonus room, Jack & Jill bath, and a 5-piece Master Ensuite. Enjoy exclusive access to the Residents' Clubhouse, splash park, and trails. Inquire today for this rare opportunity!

Listing Information

Prop. Type:
Residential Attached
Property Style:
2 Storey
Status:
Active
Condo/HOA Fee:
$450.00
City:
Edmonton
MLS® Number:
E4463428
Bedrooms:
5
Neighbourhood:
Ellerslie Industrial
Area:
Edmonton
Province:
Alberta
Listing Price:
$779,000

General Information

Year Built:
2025
Total Square Feet:
2300ft2

Additional Information

Basement Dev:
Full, Unfinished
Parking:
Double Garage Attached

VIP-Only Information

Sign-Up or Log-in to view full listing details:
Sign-Up / Log In
This property is listed by Exp Realty and provided here courtesy of MONA LAHAIE. For more information or to schedule a viewing please contact MONA LAHAIE.
MONA LAHAIE
Remax Elite
Phone: 780-929-5555
Mobile Phone: 780-850-0800
Inquire Via Email
Data is deemed reliable but is not guaranteed accurate by the REALTORS® Association of Edmonton.