Featured Properties

To view the featured individual properties we have for sale, simply search using the fields below.

Courtesy of Century 21 Leading.
Data was last updated 2025-06-25 at 20:18:11 GMT
$539,000

3772 30 Street   Edmonton, Alberta

MLS®: E4473429
URL:    
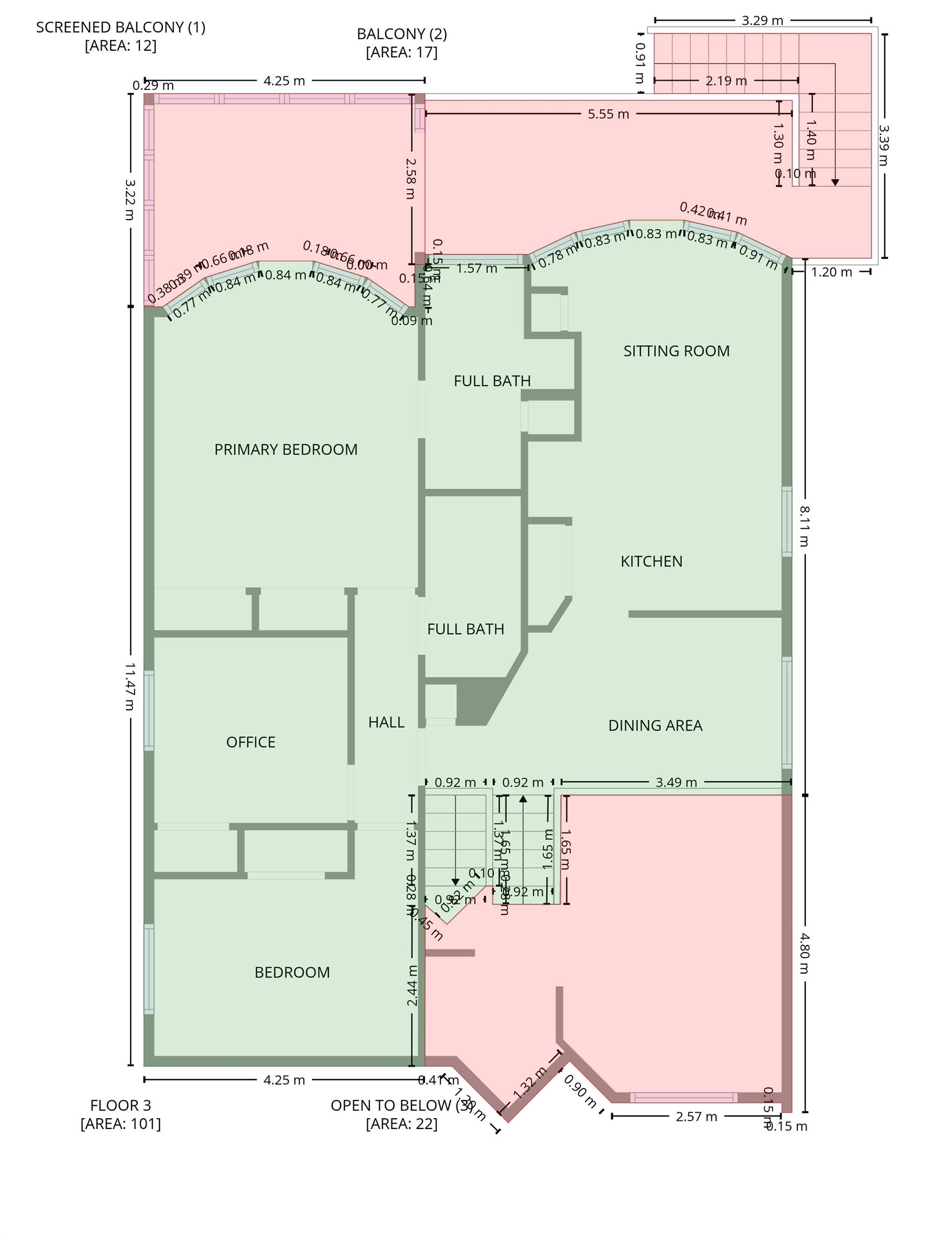
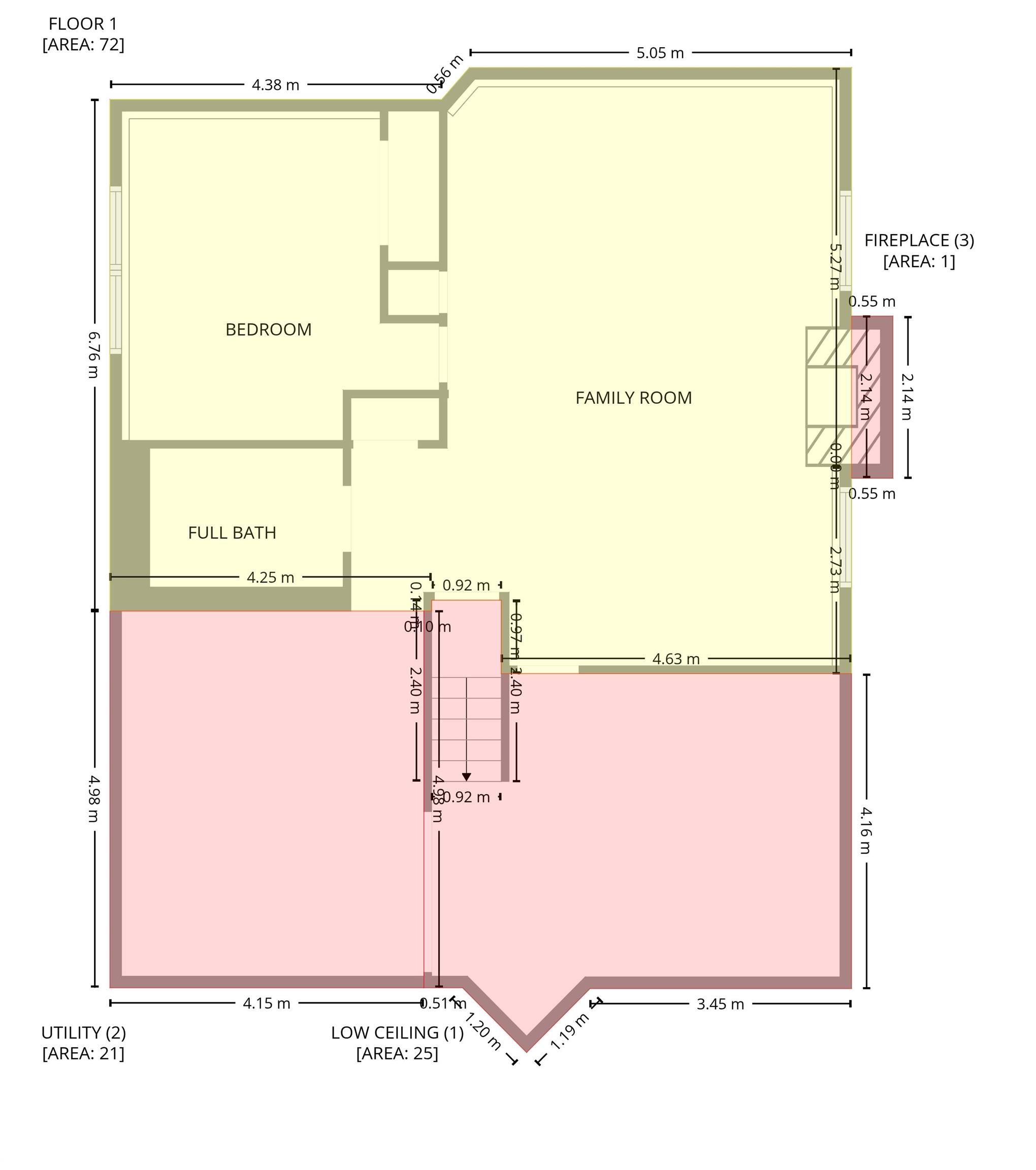
Welcome to your dream family home! This well-maintained 3 Bed, 3 Bath, bi-level home offers over 1,360 sq ft of comfortable living space, with inviting outdoor features. Nestled in the desirable Wild Rose community, it's an ideal spot for families seeking convenience and natural beauty. A spacious layout of 3 generous bedrooms and 3 full bathrooms, including a primary suite with a private sunroom ? your personal oasis for morning coffee or evening relaxation. For entertainment or family fun enjoy the expansive family room designed for gatherings, movie nights, and everyday fun. If that is not enough, a beautifully landscaped yard with a large area for BBQs and summer evenings. Enjoying time on the patio and soaking up the sunshine. This well-maintained home features newer appliances, furnace, and hot water tank to ensure worry-free living and energy efficiency. Just steps from Meadowbrook Lake or Wild Rose Park for leisurely walks and playground adventures.
Welcome to your dream family home! This well-maintained 3 Bed, 3 Bath, bi-level home offers over 1,360 sq ft of comfortable living space, with inviting outdoor features. Nestled in the desirable Wild Rose community, it's an ideal spot for families seeking convenience and natural beauty. A spacious layout of 3 generous bedrooms and 3 full bathrooms, including a primary suite with a private sunroom ? your personal oasis for morning coffee or evening relaxation. For entertainment or family fun enjoy the expansive family room designed for gatherings, movie nights, and everyday fun. If that is not enough, a beautifully landscaped yard with a large area for BBQs and summer evenings. Enjoying time on the patio and soaking up the sunshine. This well-maintained home features newer appliances, furnace, and hot water tank to ensure worry-free living and energy efficiency. Just steps from Meadowbrook Lake or Wild Rose Park for leisurely walks and playground adventures.

Listing Information

Prop. Type:
Detached Single Family
Property Style:
Bi-Level
Status:
Active
City:
Edmonton
MLS® Number:
E4473429
Bedrooms:
4
Neighbourhood:
Wild Rose
Area:
Edmonton
Province:
Alberta
Listing Price:
$539,000

General Information

Year Built:
1990
Total Square Feet:
1367ft2

Additional Information

Basement Dev:
Full, Finished
Parking:
Double Garage Attached

VIP-Only Information

Sign-Up or Log-in to view full listing details:
Sign-Up / Log In
This property is listed by Century 21 Leading and provided here courtesy of MONA LAHAIE. For more information or to schedule a viewing please contact MONA LAHAIE.
MONA LAHAIE
Remax Elite
Phone: 780-929-5555
Mobile Phone: 780-850-0800
Inquire Via Email
Data is deemed reliable but is not guaranteed accurate by the REALTORS® Association of Edmonton.